Interior/Exterior Projects
3D Exterior & Interior Bus Design Visualization
Created high-detail 3D renderings of a custom-designed bus using CAD references and concept sketches. Focused on both interior layout and exterior aesthetics, producing photorealistic visuals in Photoshop for client presentations and marketing use. Emphasized material detailing, lighting, and accurate perspective to bring the vehicle’s design to life. Collaborated closely with engineering and branding teams to ensure design consistency and functionality.
Restaurant BIM, 3D Modeling & Rendering
I designed a restaurant project from concept to final presentation, starting with Revit BIM planning for precise layouts and coordination. After developing detailed 3D models in Revit and 3ds Max, I created immersive interior design visualizations that captured the ambience and functionality of the space. For rendering, I applied V-Ray, Lumion, and Corona Renderer as per client requirements to deliver photorealistic results. This project combined architecture, interior design, and advanced rendering software to showcase a fully realized dining environment.
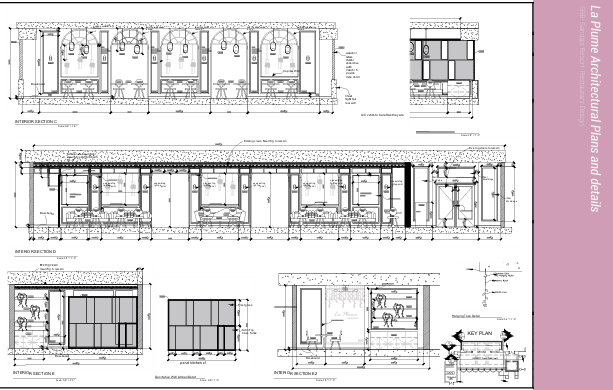
Interior & Architectural Design
I specialize in interior design and architecture, offering creative and functional 2D drawings, 3D models, and realistic renders. Skilled in SketchUp, Revit, and 3ds Max, I develop accurate models that reflect client ideas with precision. Depending on requirements, I use V-Ray, Lumion, or Corona Renderer to produce high-quality architectural renderings and interior visuals. From concept to final presentation, I ensure every project communicates design intent clearly and enhances client satisfaction with professional visualization.






Ready to bring your vision to life?
Start your journey with Archonix Studio and transform your space with expert design and construction services.