Architectural/Structural Projects

sehgal residence architectural

SEHGAL RESIDENCE

This project involved the addition and alteration of an existing one-story residence, designed to enhance functionality, expand living space, and upgrade the structural performance of the home while maintaining architectural harmony with the existing structure.
Project Scope:

  • Residential addition and renovation of an existing one-story home

  • Expansion of key living areas including:

    • Master bedroom suite

    • Additional bathroom

    • Gallery, foyer, and powder room

    • New garage addition

    • Elevated patio and outdoor living spaces

  • Interior layout optimization with selective demolition

sehgal residence architectural 1
sehgal residence architectural 2
waldinger sd arch floor plans architect 1

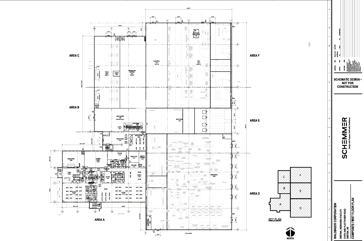
Waldinger SD ARCH FLOOR PLAN

This project demonstrates strong expertise in architectural drafting and residential layout design, delivering precise, construction-ready floor plans that support efficient execution and clear communication between stakeholders.

  • Comprehensive Architectural Floor Plan Set developed for residential design and renovation

  • Clear, well-coordinated space planning emphasizing functionality, circulation, and usability

  • Detailed layouts covering living areas, bedrooms, kitchens, bathrooms, and service spaces

  • Accurate dimensioning, room labeling, and architectural annotations for construction clarity

  • Optimized interior layouts to support renovation, alteration, and future expansion

  • Drawings prepared to align with architectural standards and permit documentation requirements.

waldinger sd arch floor plans architect 2
waldinger sd arch floor plans architect 3

Ready to bring your vision to life?

Start your journey with Archonix Studio and transform your space with expert design and construction services.